Listing Details
Property Description
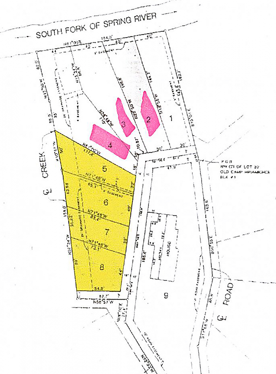
Old Camp Miramichee Cabin - This 577 square foot cabin is an original from girls Camp Miramichee days. The cabin has been renovated Inside, and outside with a beautiful new deck. Features include living/dining room with wood burning stove, nice kitchen, bedroom, full bath and original Flagstone flooring. Cabin is being sold furnished and is a good seasonal rental. Across the road are 4 creek frontage lots include with the cabin for an additional 3 m/l acres of land. The cabin and the 4 lots sit next to a creek that flows into the South Fork of the Spring River. Text/Call Jason Rhodes 870-847-5846 Single family cabin close to South Fork River in the Hardy/Highland area, Sharp County, Arkansas.
River/Creek: 1
Single Family: 1
Lot: 1
Deck/Patio: 1
Paved Road: 1
Old Camp Miramichee Cabin - This 577 square foot cabin is an original from girls Camp Miramichee days. The cabin has been renovated Inside, and outside with a beautiful new deck. Features include living/dining room with wood burning stove, nice kitchen, bedroom, full bath and original Flagstone flooring. Cabin is being sold furnished and is a good seasonal rental. Across the road are 4 creek frontage lots include with the cabin for an additional 3 m/l acres of land. The cabin and the 4 lots sit next to a creek that flows into the South Fork of the Spring River. Text/Call Jason Rhodes 870-847-5846 Single family cabin close to South Fork River in the Hardy/Highland area, Sharp County, Arkansas.
Listed by: Jason Rhodes - King-Rhodes & Associates (Ron Rhodes & Melissa Smith, Broker)
Jason Rhodes
Realtor
870-847-5846
