Details for Listing #25032383

Request Info
Save
Add Note
Login
Create Account
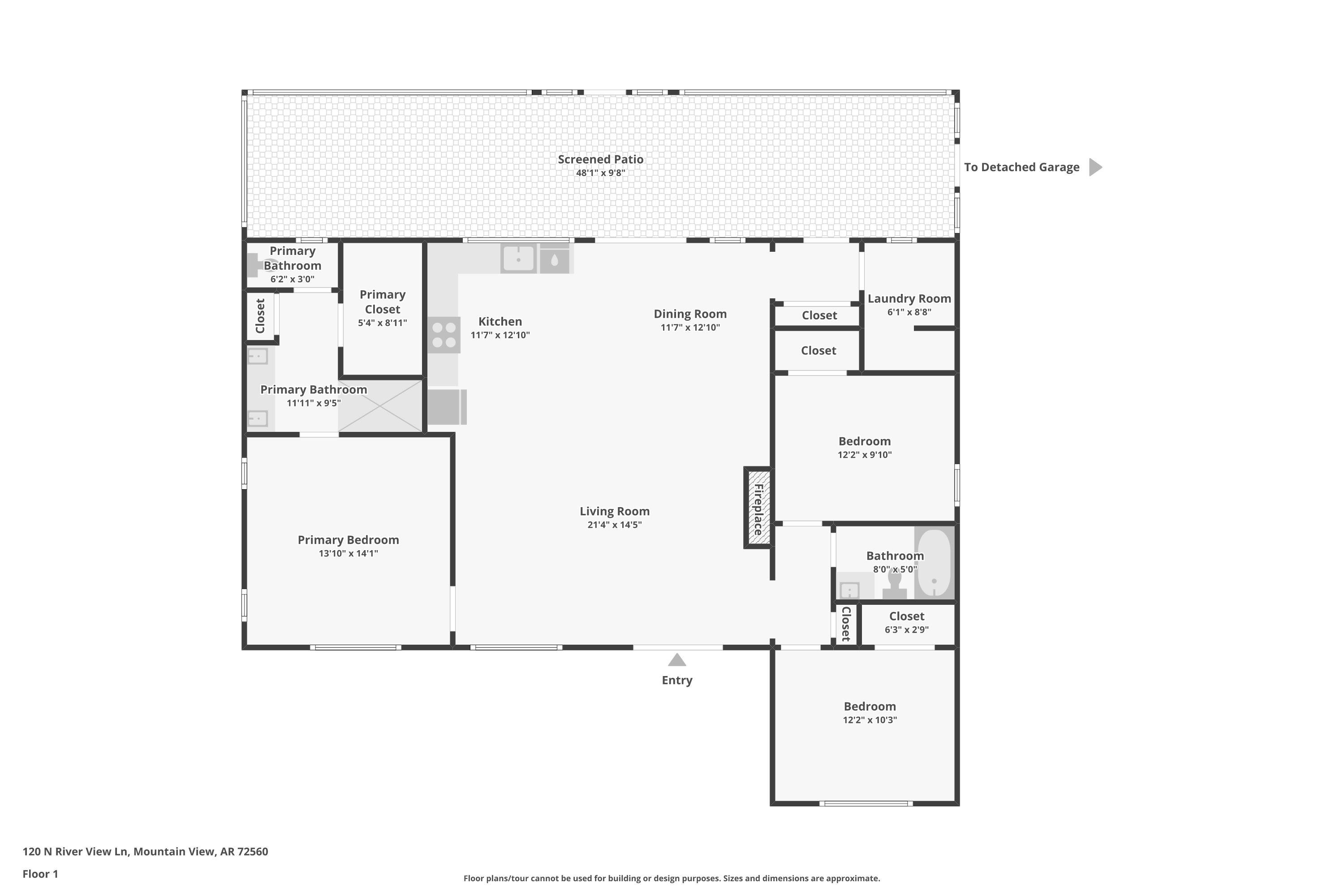
120 N Riverview Mountain View AR 72560
Residential for sale – 120 N Riverview   Mountain View, AR View 45 Photos
$485,000
View Calculated Payment
Listing ID: 25032383
Status: Active
Type: Residential
Bedrooms: 3
Bathrooms: 2
Square Foot: 2401
Lot Size/Acres: 0.56
County: Izard
Print Listing
Property Details

Beautiful White River Views! Experience refined living in this 2,401 sqft. under roof new-construction home in the prestigious Riverview Landing. Thoughtfully designed with exceptional craftsmanship, this 3-bed / 2-bath residence offers upscale finishes and comes partially furnished—ready for you to enjoy from the moment you arrive. Inside, spacious, light-filled interiors showcase quality and intention at every turn. Beyond the walls, enjoy sweeping White River and Ozark Mountain views, crisp mountain air, and the area’s natural charm—without the upkeep or concerns of direct waterfront ownership. A boat ramp is just steps away, providing easy access for day. A well-appointed 2-car carport with generous enclosed storage provides both convenience and functionality. With only 5–7 homes planned along this street, none match this combination of high-end quality, exceptional efficiency, and outstanding value—a truly rare opportunity. Riverview Landing is reserved exclusively for owner-occupants who appreciate style, privacy, and the finest in craftsmanship. Don’t miss your chance—schedule a private viewing today and experience the unmatched quality of Riverview Landing for yourself.

Beautiful White River Views! Experience refined living in this 2401 sqft. under roof new-construction home in the prestigious Riverview Landing. Thoughtfully designed with exceptional craftsmanship, this 3-bed / 2-bath residence offers upscale finishes and comes partially furnished—ready for you to enjoy from the moment you arrive. Inside, spacious, light-filled interiors showcase quality and intention at every turn. Beyond the walls, enjoy sweeping White River and Ozark Mountain views, crisp mountain air, and the area’s natural charm—without the upkeep or concerns of direct waterfront ownership. A boat ramp is just steps away, providing easy access for day. A well-appointed 2-car carport with generous enclosed storage provides both convenience and functionality. With only 5–7 homes planned along this street, none match this combination of high-end quality, exceptional efficiency, and outstanding value—a truly rare opportunity. Riverview Landing is reserved exclusively for owner-occupants who appreciate style, privacy, and the finest in craftsmanship. Don’t miss your chance—schedule a private viewing today and experience the unmatched quality of Riverview Landing for yourself.


In City Limits: No

Utilities: Septic • Water-Public • Elec-Municipal (+Entergy) • Gas-Propane/Butane


Year Built / Age: 2025
Listing Status: Active
Foundation: Slab
Parking: Carport,Parking Pads,Two Car,Detached,Four Car or More
Exterior: Frame
Subdivision: Metes & Bounds

Listed by: Century 21 Middleton -

IDX logoIDX Data Provided By Cooperative Arkansas REALTORS® Multiple Listing Services, Inc. Some or all of the listings displayed may not belong to the firm whose website is being visited. Copyright© . The information provided is for the consumer's personal, non-commercial use and may not be used for any purpose other than to identify prospective properties that the consumer may be interested in purchasing. Information deemed reliable, but not guaranteed. Some or all of the listings displayed may not belong to the firm whose web site is being visited.