Details for Listing #24019033

Request Info
Save
Add Note
Login
Create Account
132 E Main Hardy AR 72542
Commercial / Industrial for sale – 132 E Main   Hardy, AR View 43 Photos
$335,800
View Calculated Payment
Listing ID: 24019033
Status: Active
Type: Commercial / Industrial
Square Foot: 3358
Lot Size/Acres: 0.06
County: Sharp
Print Listing
Property Details

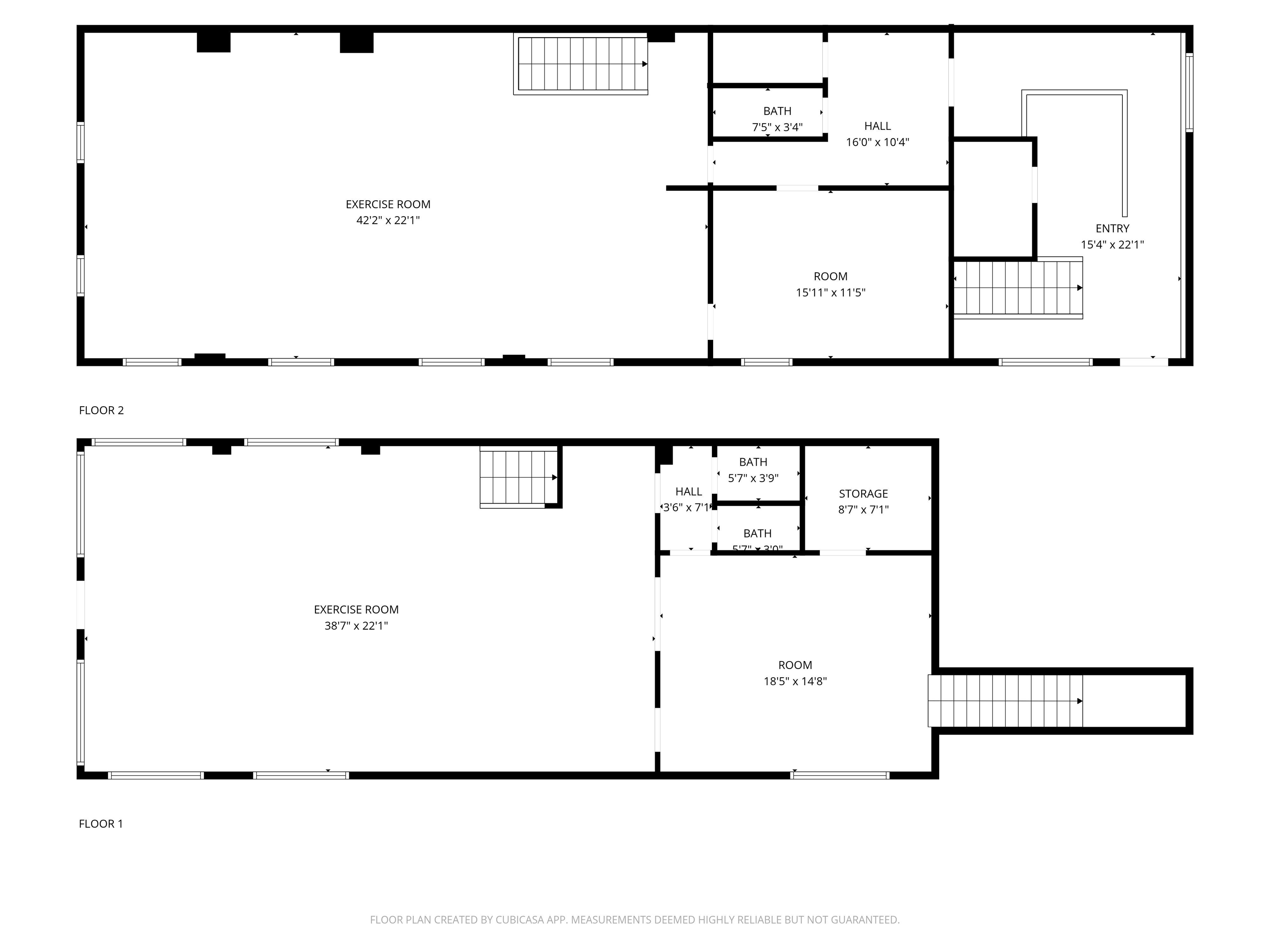
Two-story, fully functional commercial building on main street in the beautiful Spring River Town of Hardy, Arkansas. This is a high tourist traffic community which boast great opportunity for a business of your choosing in this building. It's currently a gym with lots of new gym equipment. Owner is willing to negotiate on equipment. The building has been restored, inside & out. New metal roof 2024. It has two public bathrooms on main level and two on upper level. It also has a kitchen upstairs w/window ac unit. (kitchen appliances do NOT convey) Security system and keyless door entry system does convey. The back entrance is handicap accessible with a ramp going to the upper level. Also attached to the rear of building is a one car garage/work-shop with a garage door. There is room behind garage to park two vehicles. There is a lot of foot traffic here and vehicle traffic is busy! Other local businesses consist of restaurants, clothing, crafts, antiques, retail, ice cream/candy shop,

Two-story, fully functional commercial building on main street in the beautiful Spring River Town of Hardy, Arkansas. This is a high tourist traffic community which boast great opportunity for a business of your choosing in this building. It's currently a gym with lots of new gym equipment. Owner is willing to negotiate on equipment. The building has been restored, inside & out. New metal roof 2024. It has two public bathrooms on main level and two on upper level. It also has a kitchen upstairs w/window ac unit. (kitchen appliances do NOT convey) Security system and keyless door entry system does convey. The back entrance is handicap accessible with a ramp going to the upper level. Also attached to the rear of building is a one car garage/work-shop with a garage door. There is room behind garage to park two vehicles. There is a lot of foot traffic here and vehicle traffic is busy! Other local businesses consist of restaurants, clothing, crafts, antiques, retail, ice cream/candy shop,


In City Limits: Yes

Utilities: Water-Public • Electric-Municipal


Year Built / Age: 1986
Listing Status: Active
Foundation: Slab
Parking: 1 - 10 Spaces
Exterior: Brick,Brick & Frame Combo
Subdivision: Original Hardy

Listed by: Ozark Gateway Realty (OGW LLC) -

IDX logoIDX Data Provided By Cooperative Arkansas REALTORS® Multiple Listing Services, Inc. Some or all of the listings displayed may not belong to the firm whose website is being visited. Copyright© . The information provided is for the consumer's personal, non-commercial use and may not be used for any purpose other than to identify prospective properties that the consumer may be interested in purchasing. Information deemed reliable, but not guaranteed. Some or all of the listings displayed may not belong to the firm whose web site is being visited.