Details for Listing #25008168

Request Info
Save
Add Note
Login
Create Account
1366 Hwy 62/412 Highland AR 72542
Commercial / Industrial for sale – 1366  Hwy 62/412   Highland, AR View 24 Photos
$284,500
View Calculated Payment
Listing ID: 25008168
Status: Active
Type: Commercial / Industrial
Square Foot: 6240
Lot Size/Acres: 5
County: Sharp
Print Listing
Property Details

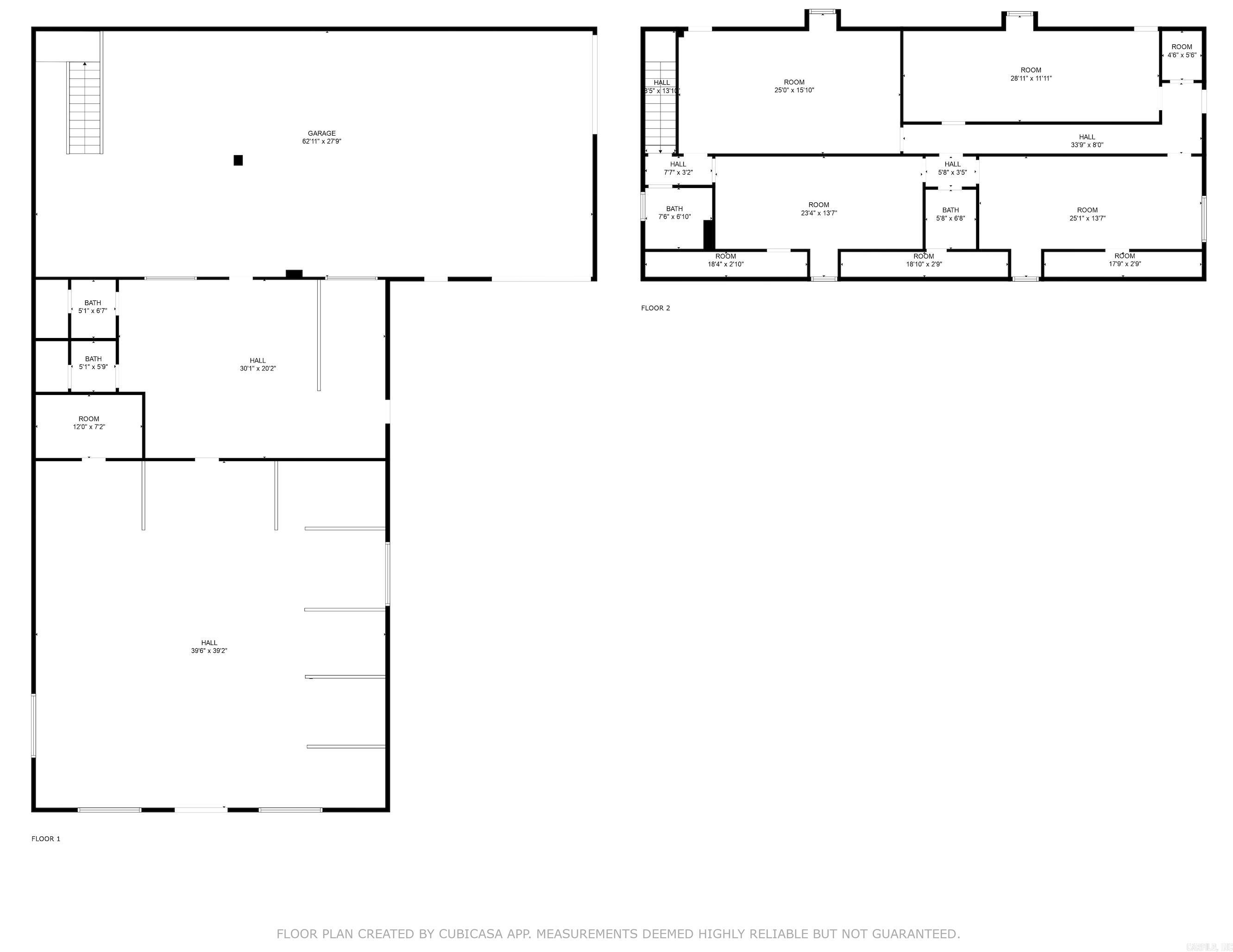
Prime Commercial Opportunity – 6,500 +/- Sq Ft Building in the Heart of Highland, AR! Discover the endless possibilities with this versatile 6,500 sq ft commercial building, ideally situated in a high-traffic location in Highland, Arkansas. Currently operating as a vintage market, this property offers a unique layout and plenty of space for a variety of ventures. When you step inside, you’re greeted by a spacious 2,000 sq ft front area, perfect for retail, office, or showroom space. Beyond the front, you'll find a central section featuring restrooms, one of which includes a shower—a convenient feature for any business setup. Moving further back, there’s a large area with roll-up doors and a loading dock, making it ideal for inventory storage, shipping, or other operational needs. The upstairs area provides even more potential, with unfinished spaces ready to be customized. This level could include a bathroom, kitchen area, and bedrooms, creating the opportunity for a live/work setup or additional business functionality. Outside, the property continues to impress with ample acreage in the back, allowing for future expansion or just more parking or area for events!

Prime Commercial Opportunity – 6500 +/- Sq Ft Building in the Heart of Highland, AR! Discover the endless possibilities with this versatile 6500 sq ft commercial building, ideally situated in a high-traffic location in Highland, Arkansas. Currently operating as a vintage market, this property offers a unique layout and plenty of space for a variety of ventures. When you step inside, you’re greeted by a spacious 2000 sq ft front area, perfect for retail, office, or showroom space. Beyond the front, you'll find a central section featuring restrooms, one of which includes a shower—a convenient feature for any business setup. Moving further back, there’s a large area with roll-up doors and a loading dock, making it ideal for inventory storage, shipping, or other operational needs. The upstairs area provides even more potential, with unfinished spaces ready to be customized. This level could include a bathroom, kitchen area, and bedrooms, creating the opportunity for a live/work setup or additional business functionality. Outside, the property continues to impress with ample acreage in the back, allowing for future expansion or just more parking or area for events!


In City Limits: Yes


Listing Status: Active
Subdivision: Metes & Bounds

Listed by: Mossy Oak Properties Selling Arkansas -

IDX logoIDX Data Provided By Cooperative Arkansas REALTORS® Multiple Listing Services, Inc. Some or all of the listings displayed may not belong to the firm whose website is being visited. Copyright© . The information provided is for the consumer's personal, non-commercial use and may not be used for any purpose other than to identify prospective properties that the consumer may be interested in purchasing. Information deemed reliable, but not guaranteed. Some or all of the listings displayed may not belong to the firm whose web site is being visited.