Details for Listing #25034481

Request Info
Save
Add Note
Login
Create Account
27 Miramichee Hardy AR 72542
Residential for sale – 27  Miramichee   Hardy, AR View 15 Photos
$199,500
View Calculated Payment
Listing ID: 25034481
Status: Active
Type: Residential
Bedrooms: 1
Bathrooms: 1
Square Foot: 577
Lot Size/Acres: 1
County: Sharp
Print Listing
Property Details

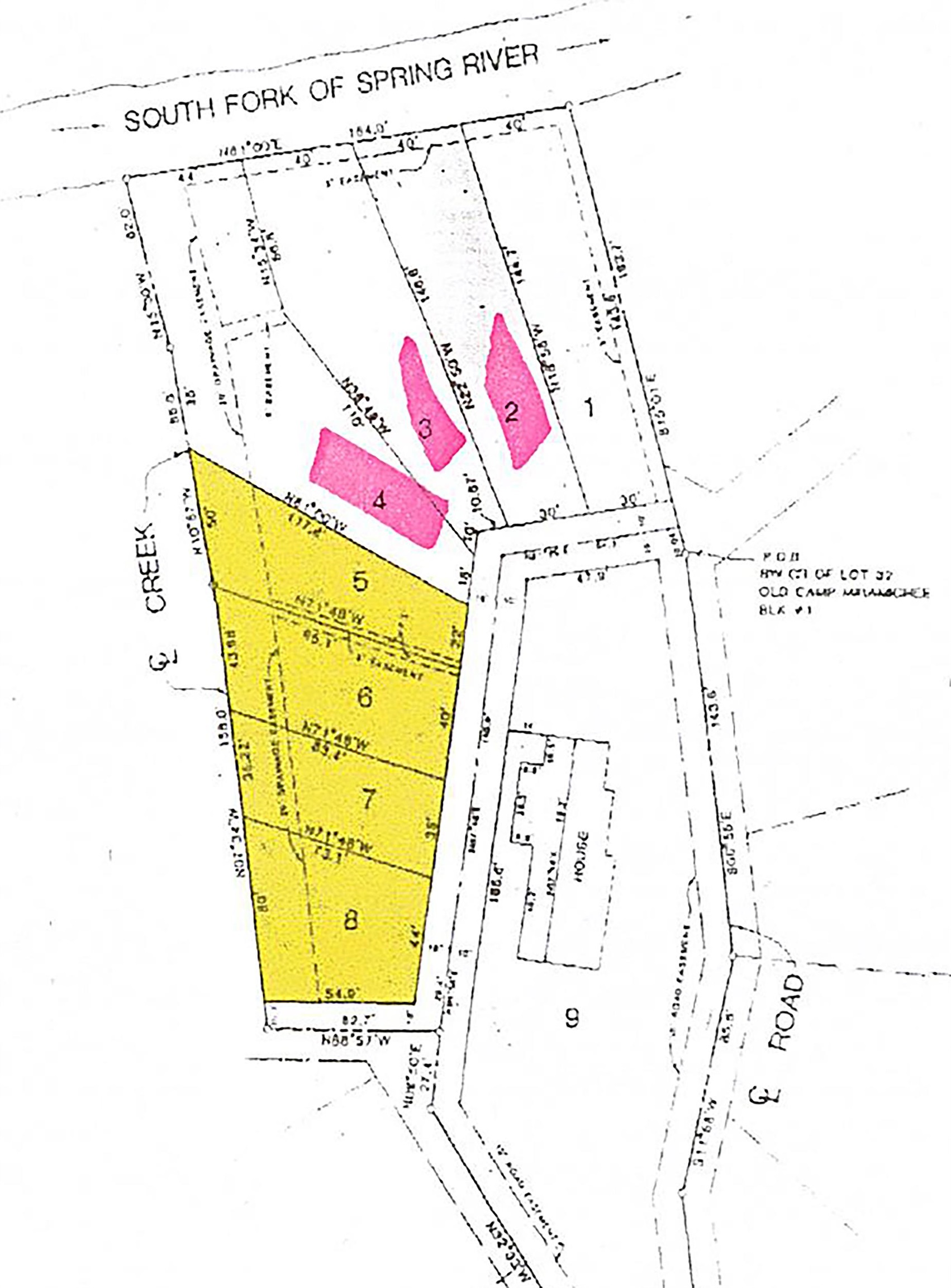
Old Camp Miramichee Cabin and 4 Creek Frontage Lots - This 577 square foot cabin is an original from girls Camp Miramichee days. The cabin has been renovated Inside, and outside with a beautiful new deck. Features include living/dining room with wood burning stove, nice kitchen, bedroom, full bath and original Flagstone flooring. Cabin is being sold furnished and is a good seasonal rental. Across the road are 4 creek frontage lots include with the cabin for an additional 3 m/l acres of land. The cabin and the 4 lots sit next to a creek that flows into the South Fork of the Spring River.

Old Camp Miramichee Cabin and 4 Creek Frontage Lots - This 577 square foot cabin is an original from girls Camp Miramichee days. The cabin has been renovated Inside, and outside with a beautiful new deck. Features include living/dining room with wood burning stove, nice kitchen, bedroom, full bath and original Flagstone flooring. Cabin is being sold furnished and is a good seasonal rental. Across the road are 4 creek frontage lots include with the cabin for an additional 3 m/l acres of land. The cabin and the 4 lots sit next to a creek that flows into the South Fork of the Spring River.


In City Limits: No

Utilities: Septic • Water-Public • Elec-Municipal (+Entergy) • Gas-Propane/Butane • TV-Satellite Dish • Telephone-Private


Listing Status: Active
Foundation: Slab
Parking: None
Exterior: Frame,Wood
Subdivision: Metes & Bounds

Listed by: King-Rhodes & Associates, Inc. -

IDX logoIDX Data Provided By Cooperative Arkansas REALTORS® Multiple Listing Services, Inc. Some or all of the listings displayed may not belong to the firm whose website is being visited. Copyright© . The information provided is for the consumer's personal, non-commercial use and may not be used for any purpose other than to identify prospective properties that the consumer may be interested in purchasing. Information deemed reliable, but not guaranteed. Some or all of the listings displayed may not belong to the firm whose web site is being visited.