Details for Listing #25027666

Request Info
Save
Add Note
Login
Create Account
600 W CHURCH Horseshoe Bend AR 72512
Residential for sale – 600 W CHURCH   Horseshoe Bend, AR View 48 Photos
$675,000
View Calculated Payment
Listing ID: 25027666
Status: Active
Type: Residential
Half Baths: 4
Square Foot: 11560
Lot Size/Acres: 2.06
County: Izard
Print Listing
Property Details

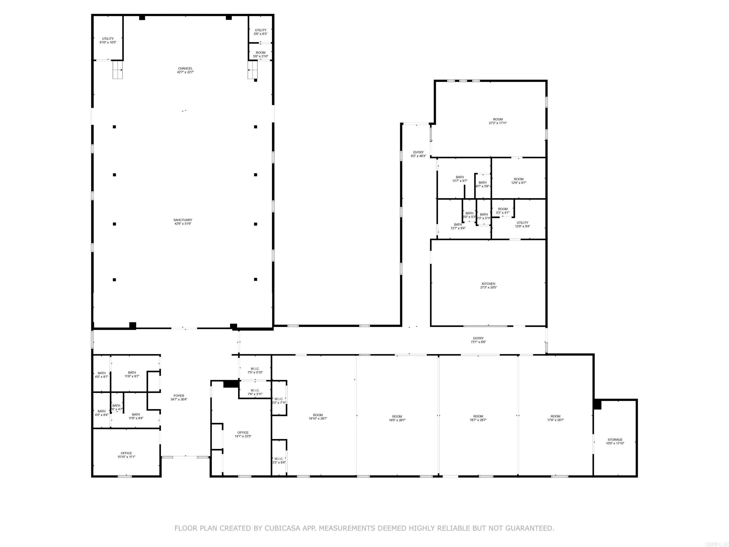
Previous church facility. Any use allowed by seller, check with city planning commission. Almost 12k square ft facility on 2 acres. Approximate 4500 SF sanctuary with lights, fans, pews, organ and sound system. Approximate 715 SF full kitchen with sinks, ventahood, stove, appliances. Appointed offices, classrooms, storage closets, and fellowship hall. 4 restrooms. Asphalt parking. Property being sold as-is present condition. All showings must be accompanied by a Realtor. NO Disclosures provided by seller. Existing personal property will remain but will not be considered part of the sale. Any items left in the building will be considered as-is and abandoned and will have zero value. Seller makes no guarantees, warranties, or representations of any kind regarding the existence, condition, or usability of said personal property which will remain in building at closing. Title transferred by Special Warranty Deed/Trustee Deed.

Previous church facility. Any use allowed by seller, check with city planning commission. Almost 12k square ft facility on 2 acres. Approximate 4500 SF sanctuary with lights, fans, pews, organ and sound system. Approximate 715 SF full kitchen with sinks, ventahood, stove, appliances. Appointed offices, classrooms, storage closets, and fellowship hall. 4 restrooms. Asphalt parking. Property being sold as-is present condition. All showings must be accompanied by a Realtor. NO Disclosures provided by seller. Existing personal property will remain but will not be considered part of the sale. Any items left in the building will be considered as-is and abandoned and will have zero value. Seller makes no guarantees, warranties, or representations of any kind regarding the existence, condition, or usability of said personal property which will remain in building at closing. Title transferred by Special Warranty Deed/Trustee Deed.


In City Limits: Yes

Utilities: Sewer-Public • Water-Public • Elec-Municipal (+Entergy) • Gas-Natural


Year Built / Age: 1979
Listing Status: Active
Foundation: Slab
Parking: Six Car or More
Exterior: Brick
Subdivision: BUSINESS CENTER

Listed by: ArkBest Realty, Inc. -

IDX logoIDX Data Provided By Cooperative Arkansas REALTORS® Multiple Listing Services, Inc. Some or all of the listings displayed may not belong to the firm whose website is being visited. Copyright© . The information provided is for the consumer's personal, non-commercial use and may not be used for any purpose other than to identify prospective properties that the consumer may be interested in purchasing. Information deemed reliable, but not guaranteed. Some or all of the listings displayed may not belong to the firm whose web site is being visited.